Eva Proje Mimarlık

işyeri açma ruhsatı krokisi

Ruhsat Sürecinde Teknik ve Resmi Uygunluk

İşyeri açma ruhsatı başvurularında en önemli teknik belgelerden biri, mevzuata uygun hazırlanmış işyeri krokisidir. İşyerinin mevcut durumunu, kullanım alanlarını ve metrekare dağılımını doğru şekilde gösteren kroki, resmi onay sürecinin sorunsuz ilerlemesi için kritik öneme sahiptir.

Uzman ekibimizle, belediye ve ilgili kurum standartlarına uygun, teknik doğruluğu yüksek krokileri eksiksiz şekilde hazırlıyoruz.

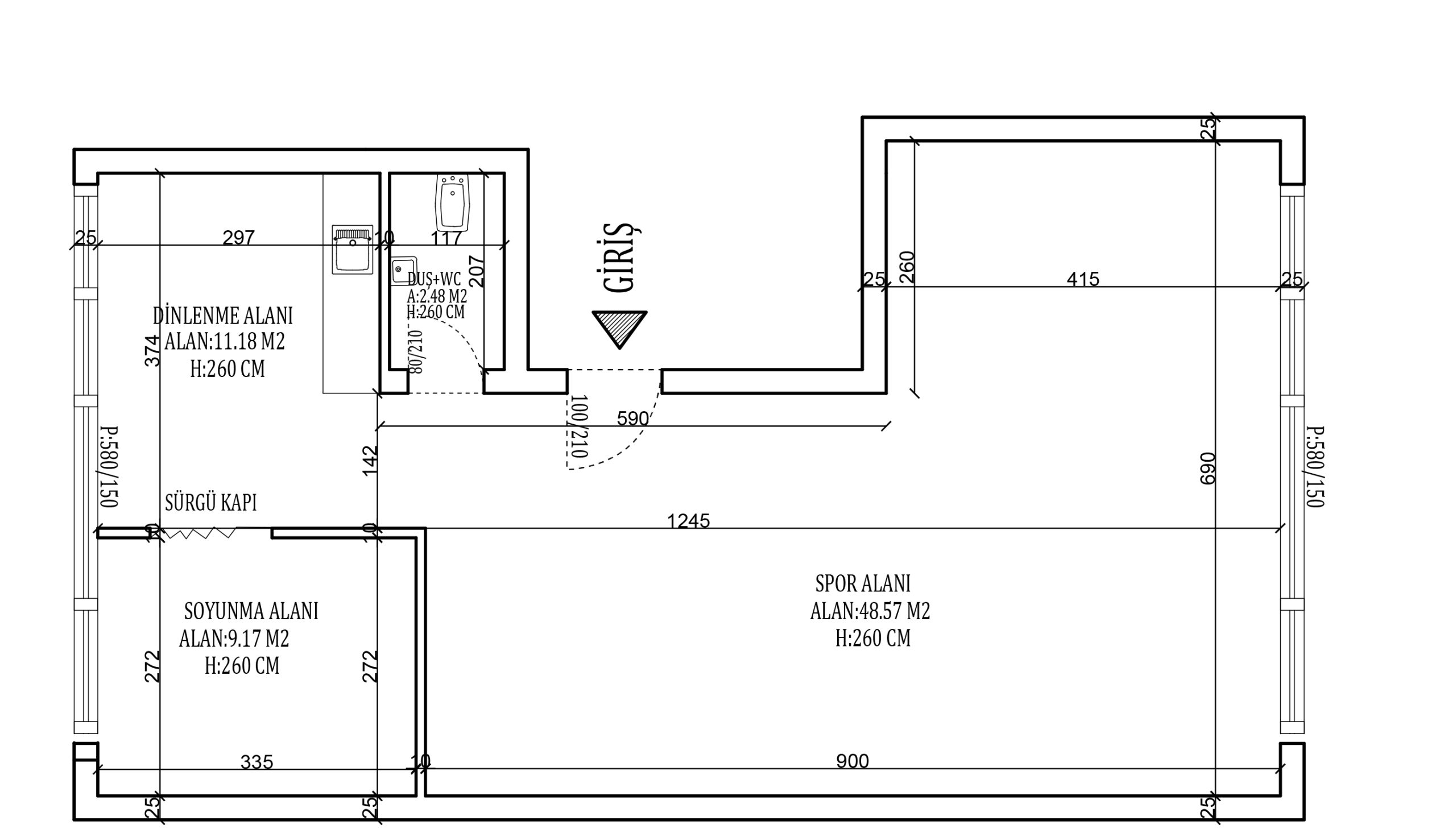
işyeri krokisi nedir?

İşyeri açma ruhsat krokisi; işletmenin iç yerleşimini, bölümlerini ve kullanım alanlarını ölçülendirilmiş ve ölçekli biçimde gösteren teknik çizimdir.

Krokide genellikle şu alanlar yer alır:

  • Toplam kullanım alanı (m² bilgisi)

  • Bölümlerin isimlendirilmesi (ofis, depo, mutfak, wc vb.)

  • Kapı ve pencere konumları

  • Yangın çıkışları ve acil kaçış yolları

  • Merdiven ve kat bilgileri

  • Ortak alan bağlantıları

Yanlış veya eksik hazırlanan bir kroki, ruhsat sürecinin uzamasına ve ek revizyon taleplerine neden olabilir.

süreci nasıl yönetiyoruz?

Her işyerini yerinde analiz ederek ölçüm ve planlama çalışmasını gerçekleştiriyoruz. Mevcut projeye uygunluk kontrolü yapıyor, gerekli düzenlemeleri belirliyoruz.

Ardından:

  • Yerinde ölçüm ve metrekare tespiti

  • Planın teknik çizim programlarında hazırlanması

  • Belediye formatına uygun düzenleme

  • İlgili standartlara göre son kontroller

Tüm süreci hızlı ve eksiksiz şekilde tamamlıyoruz.